Nanaimo Seniors Co-Housing

Nanaimo Seniors Co-Housing

Aging in place

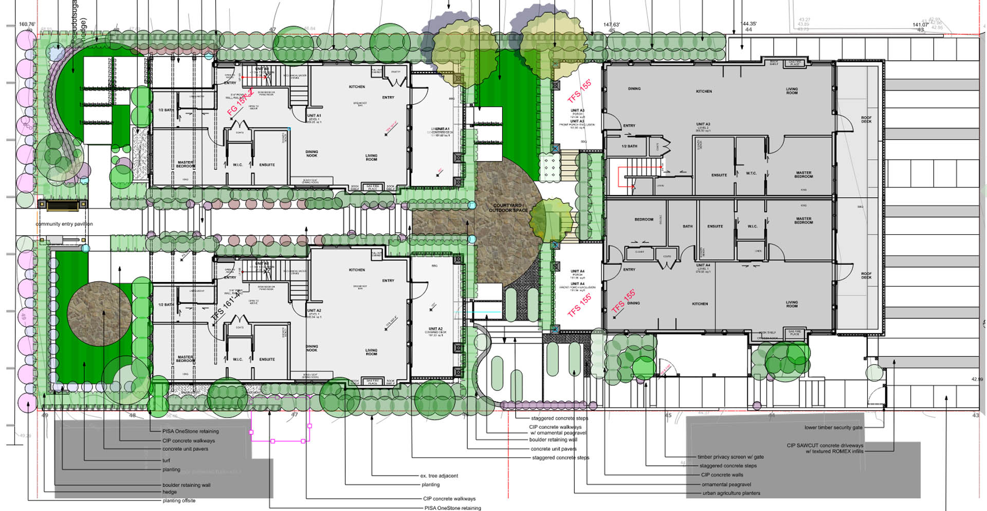
Maximizing this rezoning application for buildable area was successfully achieved by carefully avoiding issues related to privacy and overlooking. The design promotes a strong sense of community living through a common courtyard and enhances the streetscape within Nanaimo’s historic residential area. The project is tailored for aging-in-place and families, offering both stratified ownership and rental opportunities to provide income assistance. Although a sloping site presents challenges for senior living, these have been addressed through thoughtful integration of landscaping terraces and strategic siting of buildings to ensure street access, shared amenities, parking, storage, and flexible

Accessibility
Adaptability
Aging in place
Community living
Sloping site
No items found.
Hans' Hut
Nanaimo Seniors Co-Housing
Science World Renovations